Clarence Mobile Art Space

Overview

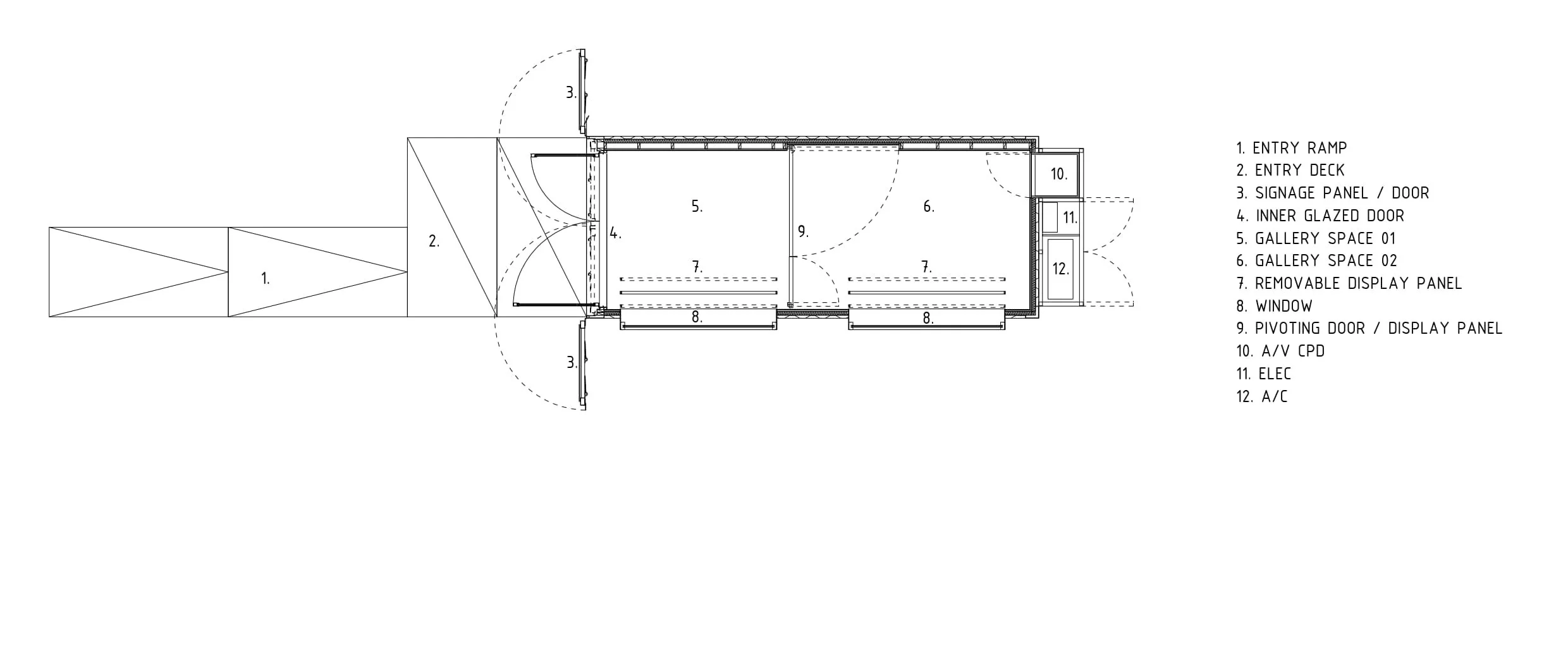
Designed for the Rosny Farm arts precinct and the City of Clarence, this innovative, compact, and multi-functional art space has been thoughtfully crafted from a repurposed shipping container. Embodying versatility and sustainable design principles, it delivers dynamic pop-up art experiences at community events, spreading art into the cultural fabric of the Clarence community. When not deployed at external locations, the micro gallery enhances the existing facilities at the Rosny Farm arts precinct, offering a versatile and engaging platform for artistic expression.

Floor Plan

Elevations

Location
Mobile, City of Clarence.

Status
Completed 2025

Category
Art

Photography
1+2 Architecture

Key Collaborators

Builder:
Alive Technologies

Structural Engineering:
Saltmarsh & Escobar Consulting Engineers


Previous
Previous

Melville Street Office

Next
Next

Sandy Bay House